arrow_back

CAD PLANS

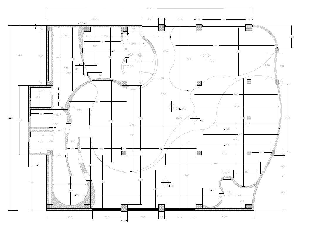
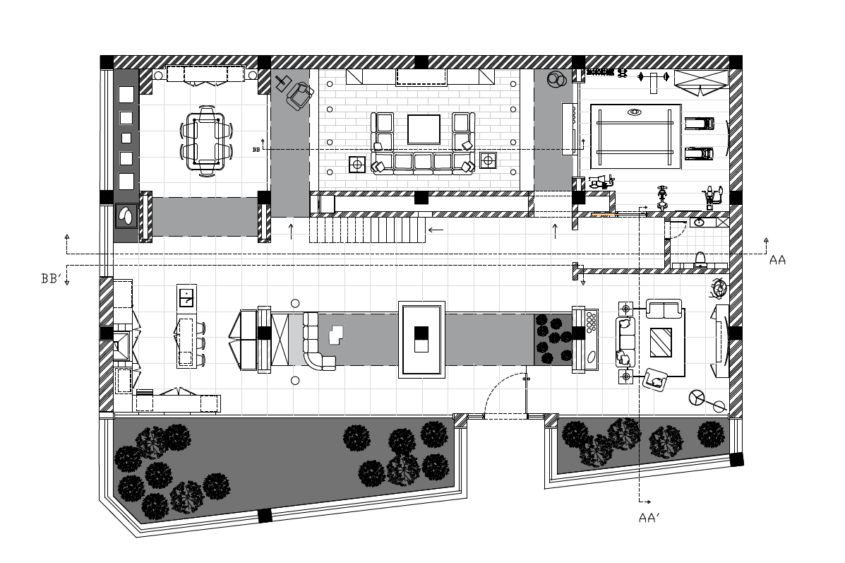
Precision in Design

Experience design precision at its finest with my AutoCAD plans derived from detailed floor plans and section elevations. Every line and dimension is meticulously crafted, offering a comprehensive view of spatial arrangements and structural details. These plans serve not just as blueprints but as visual guides, facilitating clear communication among stakeholders. The commitment to accuracy ensures a seamless transition from concept to construction, setting the stage for a flawlessly executed design.